Woonoppervlakte
Circa 66 m²
Perceeloppervlakte
Circa 84 m²
Bouwjaar
Gebouwd in 1923
Aantal kamers
4 kamers (3 slaapkamers)

Van Limburg Stirumstraat 45

1781 VA, Den Helder (Noord-Holland)

ONDER BOD!


Zoek je een kluswoning die je helemaal zelf kunt verbouwen en renoveren? Deze woning is per direct beschikbaar of kan worden opgeleverd in overleg.


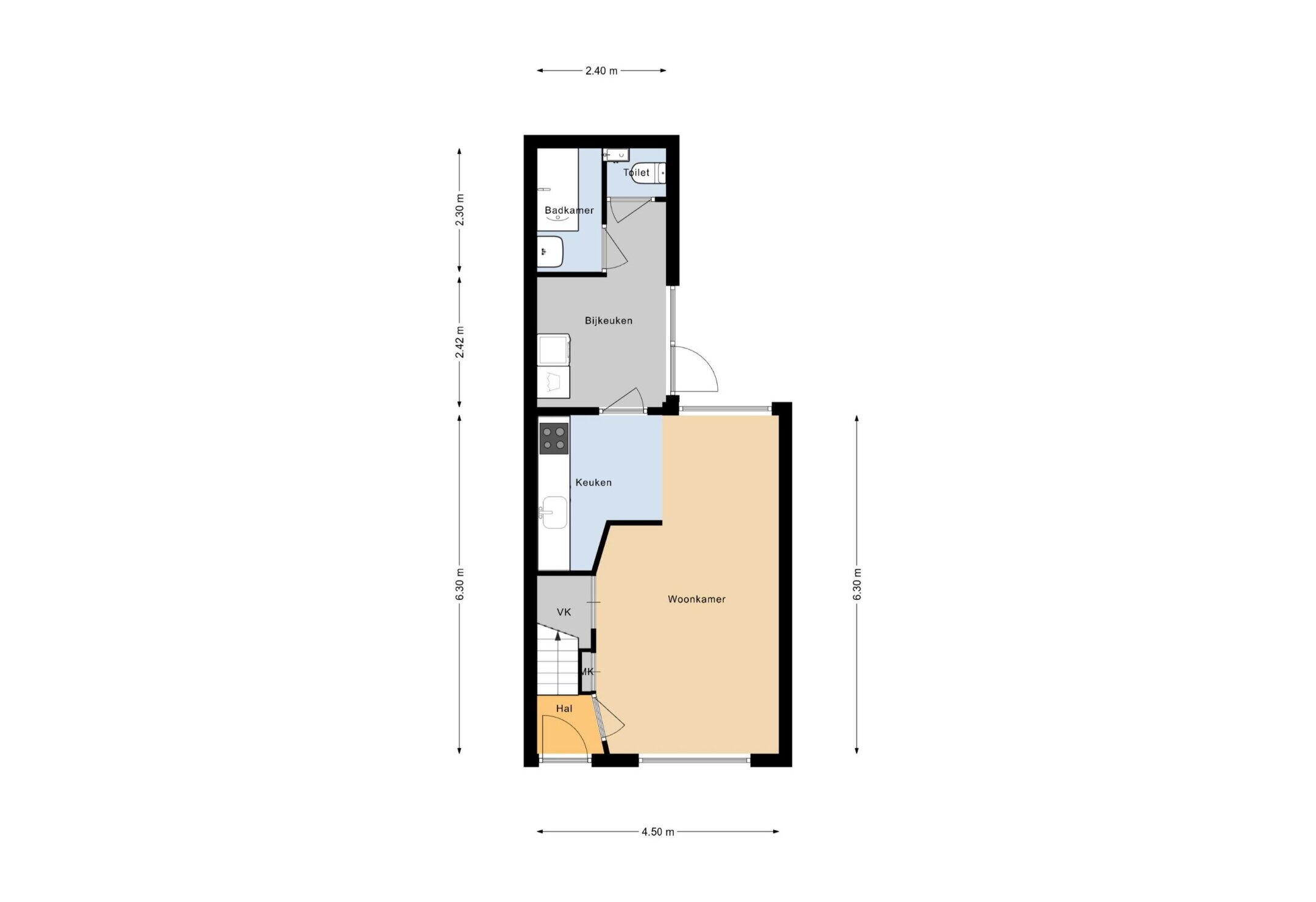
Indeling:


Entree, hal met trapopgang, meterkast en toegang naar de woonkamer. Vaste trapkast in de woonkamer en aan de achterzijde de keuken. In de aanbouw een bijkeuken voor de opstelling van witgoed, een toilet en een badkamer.


Achtertuin:


In de achtertuin een royale berging van 6,35 m x 1,96 m (achter de aanbouw van de woning). Tevens een poort naar de steeg om achterom te gaan.


Verdieping:


Overloop met drie slaapkamers en een vliering.


Richtprijs € 145.000,- Vanf deze prijs worden biedingen in overweging genomen.


Alle moeite is genomen om de informatie hierboven omtrent het aangebodene zo accuraat en actueel mogelijk weer te geven. Fouten zijn echter nooit uit te sluiten. Vertrouw daarom nooit alleen op deze informatie, maar controleer bij aankoop de zaken die uw beslissing zouden kunnen beïnvloeden. Voorts heeft alle informatie een indicatief karakter, waaronder doch niet uitsluitend maatvoering; er kunnen geen rechten aan worden ontleend. Verrekening wegens over- of ondermaat is uitgesloten. Het schriftelijkheidsvereiste is op alle via ons aangeboden objecten van toepassing, een aanbieding is vrijblijvend.


Plattegronden

Overdracht

Vraagprijs
€ 145.000 k.k.
Status
Verkocht

Bouw

Object type
Eengezinswoning, tussenwoning
Soort bouw
Bestaande bouw
Bouwjaar
1923

Oppervlakte en inhoud

Woonoppervlakte
66 m²
Perceeloppervlakte
84 m²
Inhoud
265 m³
Overige inpandige ruimte
12 m²

Indeling

Aantal kamers
4 kamers (3 slaapkamers)
Aantal badkamers
1 badkamer en 1 apart toilet
Voorzieningen
Tv kabel, natuurlijke ventilatie

Energie

Energielabel
G
Energielabel registratie
19-01-2022
Verwarming
CV-ketel

Buitenruimte

Ligging
In woonwijk
Tuin
Achtertuin

Bergruimte

Schuur / berging
Aangebouwd steen

Parkeergelegenheid

Soort parkeergelegenheid
Openbaar parkeren

Energieverbruik in Den Helder

Energielabel deze woning

Energielabel G

Publicatie energielabel: 19-01-2022

Stroomverbruik per jaar

2490 kWh

(Gemiddelde tussenwoning in Den Helder)

Gasverbruik per jaar

1130 m³

(Gemiddelde tussenwoning in Den Helder)

* Cijfers zijn afkomstig van het CBS en bedoeld als indicatie en kunnen verschillen voor deze woning

Indicatie hypotheeklasten

Eigen inleg:
Spaargeld / overwaarde

Rente:
Laagste 10-jaars rente

Laagste 10-jaars rente

2,83% - Centraal Beheer Groen... - NHG


3,1% - Centraal Beheer Groen L... - 80%

Laagste 20-jaars rente

3,26% - Argenta Groen Hypothee... - NHG


3,47% - Argenta Groen Hypothee... - 80%

Laagste 30-jaars rente

3,43% - Argenta Groen Hypothee... - NHG


3,64% - Argenta Groen Hypothee... - 80%


Hypotheek:

Bruto maandlasten: € 0 p/m

Netto maandlasten: € 0 p/m

Hoe berekenen we dit?

Het rentepercentage is gebaseerd op de laagste 10 jaars vaste rente voor één hypotheekdeel. De vermelde rente (2.83% met NHG) is gecontroleerd op 04-12-2025. Deze berekening is gebaseerd op een annuïteitenhypotheek die volledig wordt afgelost, waarbij de maandlasten gedurende de gehele looptijd gelijk blijven. De werkelijke rente en netto maandlasten kunnen variëren, afhankelijk van uw persoonlijke situatie en de hypotheekverstrekker. Raadpleeg een financieel adviseur voor een nauwkeurige berekening en advies. Aan deze berekening kunnen geen rechten worden ontleend; het dient enkel als indicatie.

Documentatie

Kadastrale kaart

Leefomgeving

BAG uittreksel

Kadastrale-kaart

Woz-waardeloket-van-limburg-stirumstraat-45-den-helder

Begane-grond-1

Begane-grond-2

Plattegrond-begane-grond

Plattegrond-bovenverdieping

Plattegronden PDF

Bezoek onze website

Zonnegrenzen bekijken

Op de kaart

Inwoners in Den Helder

Cijfers voor postcodegebied 1781

Totaal aantal inwoners
9050 inwoners
Mannen
51%
Vrouwen
49%

Inwoners in Den Helder

Cijfers voor postcodegebied 1781

tot 15 jaar
13%
15 tot 25 jaar
12%
25 tot 35 jaar
26%
45 tot 65 jaar
31%
65 en ouder
18%

Huishoudens in Den Helder

Cijfers voor postcodegebied 1781

Eenpersoons zonder kinderen
50%
Meerpersoons zonder kinderen
24%
Huishoudens zonder kinderen
74%

Huishoudens in Den Helder

Cijfers voor postcodegebied 1781

Huishoudens met één kind
9%
Huishoudens met meerdere kinderen
17%
Huishoudens met kinderen
26%

Woningen in Den Helder

Cijfers voor postcodegebied 1781

Woningen voor 1945
47%
Woningen tussen 1945 en 1965
13%
Woningen tussen 1965 en 1975
3%
Woningen tussen 1975 en 1985
24%
Woningen tussen 1985 en 1995
5%

Woningen in Den Helder

Cijfers voor postcodegebied 1781

Woningen tussen 1995 en 2005
3%
Woningen tussen 2005 en 2015
3%
Woningen na 2015
2%
Huurwoningen
50%
Koopwoningen
50%

Overige in Den Helder

Cijfers voor postcodegebied 1781

Gemiddelde WOZ waarde
€ 126.000,-
Personen onder de 65 met uitkering
13%

Overige in Den Helder

Cijfers voor postcodegebied 1781

Adressen per km²
2321
Stedelijkheid (schaal 1 op 5)
80%
Postcode kaart 1781 Gemeente kaart den helder

Korte feiten over Den Helder

Den Helder is de noordelijkste plaats en gemeente op het vasteland van de Nederlandse provincie Noord-Holland. De gemeente ligt in de regio Kop van Noord-Holland of Noordkop. Ten noordwesten van de stad ligt de zandplaat Noorderhaaks, ten noorden het Marsdiep met aan de overkant het eiland Texel en ten oosten de uitgestrekte waddenplaat Balgzand.

Indien u vragen heeft of u wilt een bezichtiging inplannen, dan kunt u gebruik maken van het formulier hiernaast. Er zal daarna op korte termijn contact met u worden opgenomen.

Marsdiepstraat 176

1784 AT, Den Helder

0223 616 490 info@stevensvastgoed.nl www.stevensvastgoed.nl

Alles voor een tevreden klant

Als onderneming met een sterke maatschappelijke betrokkenheid hechten wij veel waarde aan het leveren van topkwaliteit service. Het is voor ons essentieel om inzicht te hebben in uw behoeften en uw ervaringen met onze advisering en ondersteuning. Uw feedback is voor ons van onschatbare waarde en wordt dagelijks gebruikt om onze diensten verder te verbeteren. Door uw ervaringen te delen, draagt u bovendien bij aan het KWF, waarmee we gezamenlijk investeren in een vruchtbare samenwerking.

Bent u benieuwd naar de ervaringen van anderen met onze dienstverlening? Bekijk dan de klantbeoordelingen op onze website.

Alles voor een tevreden klant
Reviews Stevens Vastgoed

Van Limburg Stirumstraat 45, Den Helder

€ 145.000 k.k. - Verkocht

Helaas, deze woning is verkocht!

Net te laat, deze woning is al verkocht. Laat een zoekopdracht bij ons achter zodat wij u direct kunnen helpen wanneer er nieuw aanbod beschikbaar komt.